Sign Up Login
$1,575,000

485 11th Avenue N Saint Petersburg, FL 33701 Residential - Single Family Active

  • 485 11th Avenue N, Saint Petersburg, FL 33701 Main Photo

13 Total Photos [Click to View All]

Description

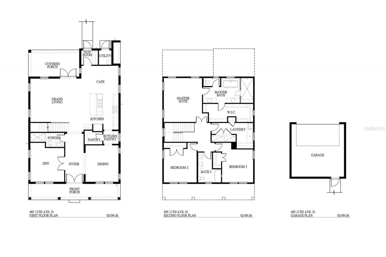
Under Construction. Luxury new construction by Mobley Homes Custom LLC, one of Tampa Bay's premier builders, located near Crescent Lake and Historic Old Northeast with NO flood insurance required. Built with hurricane-rated half concrete block construction on the first floor, this home offers durability, energy efficiency, and long-term value.This 4-bedroom, 3.5-bath home features an open-concept layout with high ceilings, Level 4 smooth drywall, and abundant natural light. The gourmet kitchen includes designer cabinetry, premium countertops, a large island, and high-end stainless steel appliances. The primary suite offers a spa-like bath with 12x24 Asian Statuary Marble from TileBar. Situated on a quiet residential street just minutes from Crescent Lake Park, Downtown St. Petersburg, and Central Avenue dining, shopping, and entertainment. Easy access to I-275, St. Pete Beach, and Tampa International Airport. The backyard includes alley access, a 2-car garage, and room for a pool or outdoor living space.Mobley Homes Custom LLC builds and owns all of their homes-no third-party investors-ensuring a smooth process and direct builder support after closing.Photos are of a similar home with the same floor plan. Finishes and features may vary.

Property Highlights

Property Type: Residential - Single Family
Cooling: Central Air
Garage: 2
Heating: Central, Heat Pump
Home Style: Craftsman
Lot Size: 0.15 Acres
Roof Type: Shingle
Stories: 2.0
Taxes: $8,651
Year Built: 2026

General Information

Bedrooms: 4
Bathrooms: 3 Full 1 Half
Sqft: 2,789
County: Pinellas
Subdivision: HARVEY'S
Listed By:
Jeff Thomas COMPASS FLORIDA LLC 727-339-7902

Amenities

Ceiling Fans(s)
High Ceilings
Kitchen/Family Room Combo
Private Mailbox
Sidewalk

Room Information

Kitchen: 16x13
Living Room: 20x17
Dining Room: 13x12
Primary Bedroom: 16x15
Primary Bathroom: 13x10
Bedroom 2: 12x11
Bedroom 3: 12x11

Property Features

Appliances: Cooktop, Dishwasher, Dryer, Freezer, Gas Water Heater, Ice Maker, Microwave, Refrigerator, Tankless Water Heater
Builder: Mobley Homes Custom LLC
Directions: From I-275, take Exit 23B for 5th Ave N and head east. Turn left on 9th St N, then right on 11th Ave N. Continue eastâ??485 11th Ave N will beon your left in the Historic Uptown area, just minutes from Crescent Lake and Downtown St. Petersburg.
Exterior: Block, HardiPlank Type, Stucco, Frame
Flood Zone Code: X
Flooring: Carpet, Hardwood
Foundation: Block, Concrete Perimeter, Stem Wall
Home Warranty Y/N: Yes
Listing Terms: Cash, Conventional, FHA, VA Loan
Lot Dimensions: 0.15
Model: Craftsman
Number of Pets: 10+
Ownership: Fee Simple
Parking: Alley Access, Off Street
Parking Notes: Alley Access, Off Street
Patio/Porch: Porch, Rear Porch
Pets Allowed: Cats OK, Dogs OK
Property Attached Y/N: No
Property Sub-Type: Single Family Residence
Sewer: Public Sewer
Showing Instructions: Combination Lock Box, See Remarks
Special Sale Provisions: None
Utilities: Cable Connected, Electricity Connected, Sewer Connected, Water Connected
Water: None
Water Access Y/N: No
$1,575,000
4beds
3.5baths
2,789sqft
2cars
New to the Market Active
BEDS4 BATHS3 full 1 partial SQUARE FEET2,789 MLS#TB8496850
STATUSActive PROPERTY TYPEResidential - Single Family SUBDIVISIONHARVEY'S

Get in Touch

Contact an agent to learn more about

485 11th Avenue N, Saint Petersburg, FL 33701.

Contact Form

Preferred Communication Method:

Estimate Your Payment

Estimated Payment

$ 6,492.50 per month $5,312.21 Principal & Interest $720.92 Property Tax $459.38 Homeowner's Insurance

Change Payment Information

%
years/fixed
yearly
yearly (est.)
(Payments are an estimate and may vary by lender)

Login to My Homefinder

Pixel